- Pays Canada
- Ville Montréal
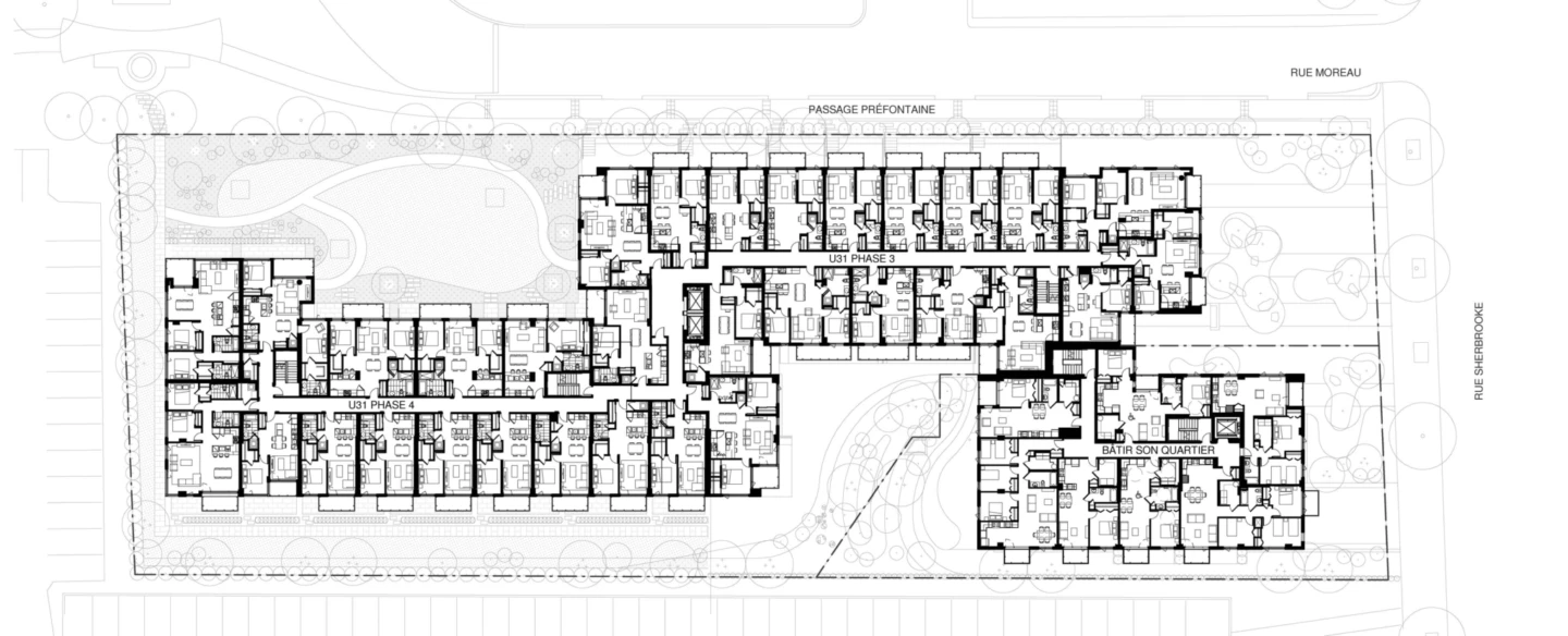
- Client Rachel Julien
- Superficie 94 639 m² sur deux bâtiments
- Année 2018
Le Complexe résidentiel U31 – Phases III + IV est situé dans Rosemont–La Petite-Patrie, à proximité de la station de métro Préfontaine.
Il comprend 89 unités en copropriété ainsi que 42 logements sociaux dotés de généreux espaces extérieurs partagés.















